電話でのお問い合わせは0773-43-2787
〒623-0066 京都府綾部市駅前通34番地
国道27号線沿いの立地です。
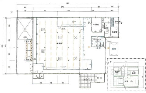
金属加工業・電気通信工事業の施設や酒販店として使用された履歴のある建物で、事務所スペース等も設置されています。駐車場は共用部分を含めると34台程度のスペースがあります。





| 名 称 | 味方町店舗 | 間 取 り | 築 年 月 | H8.10 | |
|---|---|---|---|---|---|
| 所 在 地 | 綾部市味方町アミダジ6 | 交 通 | JR綾部駅よりあやバス4分 丹波大橋停より徒歩6分 | ||
| 賃 料 | 715,000円(税込) | 共 益 費 | ― | 駐 車 料 | 込 |
| 保 証 金 | 賃料3ヶ月 | 償 却 | 入居期間による | 2台目駐車場 | あり |
| 保 険 | 要 | 更 新 料 | なし | 自治会費 | 各自 |
| 仲介手数料 | 賃料+消費税 | 保 証 料 | ― | ||
| 構 造 | 鉄骨造2階建 | 面 積 | 784.31u | 学 区 | 綾部小,綾部中 |
| 設 備 等 | ・上水道:綾部市 ・電気:関西電力 ・下水道:浄化槽 | ||||
| 周辺施設 | 態 様 | 仲介 | |||
| 備 考 | 専用駐車区画34台(共用区画あり) | ||||
| 情報更新日 | 2025年12月19日 12時00分 次回更新予定:随時 | ||||